1200mm Width Web Guide System
The integrated servo guide system is a mechanical device for aligning the side error of the coil in the forward motion. The displacement guiding system is to realize the side correction of the coil by changing the span of the coil at the inlet and outlet.
The integrated servo guide system is a mechanical device for aligning the side error of the coil in the forward motion. The displacement guiding system is to realize the side correction of the coil by changing the span of the coil at the inlet and outlet. The web guiding device can provide the corrective control you need to help production line run effectively. Combined with appropriate sensors, drivers, and other guiding components, the correcting device can provide high precision, balanced, closed loop, servo system with high dynamic response.
Servo motor displacement PG-1200 is driven by brushless DC servo motor, precision ball screw drive, compact structure, good mechanical rigidity, low inertia and high precision. It is suitable for high-speed and high-precision rectification in the intermediate process of coil processing.
Product parameters:
1. Brushless servo motor drive, maintenance-free
2. Precision ball screw
3. The guiding stroke is large
4. Can be customized guide roller length and span
5. The guide roller can be equipped with a hard anodized layer, rubber layer, wrap cork
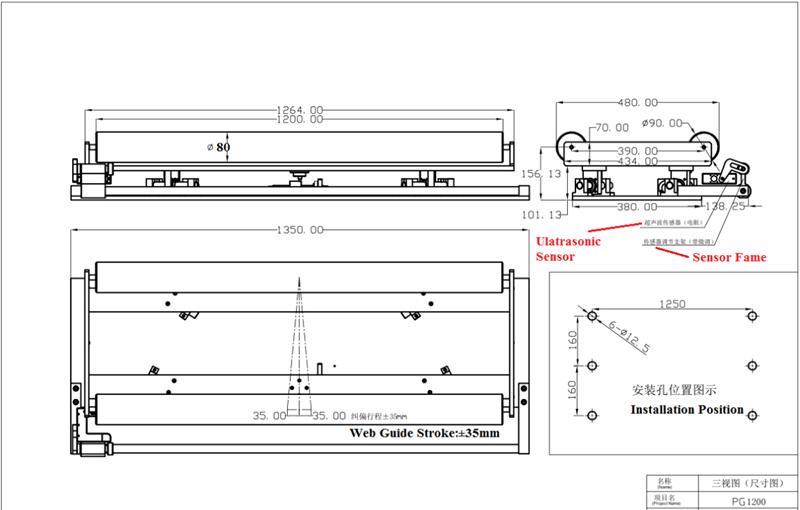
Dimension:

Technical Details
Model | 1200mm Web Displacement Guide System |
Roller Diameter | 80mm(can be customized) |
Roller Length | 1200mm(Different models have different roller length) |
Web Width Range | 200mm-1150mm |
Guide Angle | ±15° |
Maximum Tension | |
Power Input | AC220V/80W |
Span Between 2 Rollers | 390mm(can be customized) |
Maximum Drive Speed | 40mm/s |
Environment Temperature | -10~60℃/below RH90% |
Order Details
Item Name | PG-1200A Offset Pivot Guide System |
MOQ(Minimum Order Quantity) | 1pc |
Lead time | 10-15 days after receiving the deposit |
Calculated Packing Size | 130cm*60cm*50cm |
Package | Wooden Box |
Price Term | EXW,FOB, CIF, etc |
Payment term | TT, L/C,Western Union |
Country of Origin | China |
Hot Tags: 1200mm width web guide system, China, manufacturers, suppliers, factory, quotation, pricelist, buy












